和彩日料餐飲裝修工程
| 項目名稱 | 和彩日料餐飲裝修工程 | 行業屬性 | 酒店/餐飲/會所 |
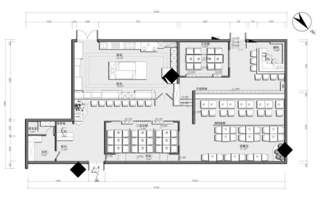
| 項目地址 | 海淀區新源西里中街18號 | 項目造價 | 23.4萬 |
| 主關鍵詞 |
▄原建筑結構分析: 散座區的整體設計以木飾面和日式裝飾為主,色調溫暖,塑造了溫馨的就餐氛圍,體現了一個祥和安逸的生活狀態,緊張的工作之后來此就餐體會到一種放松的感覺。
▄設計需求: 本案例采用木制、藤制、竹制材料搭配運用,體現日式自然親民的設計感覺。用色上采用栗色為主,體現古樸沉穩。后期軟裝飾點綴上更體現日式風格,設計簡潔大方,空間穩重舒適。
▄設計風格定位: 整體以木飾面,加上日式軟裝搭配為主,頂上是藤編材料,地面是復古防滑磚,窗簾等都采用的是豬臉,體現一種自然,原生態的感覺。 走廊以木質材料為主,墻紙搭配,日式小飾品作為點綴,美觀又實用。在選擇裝修材料的工程中特別注意自然之感,為了更加親密的跟自然接觸。


北京鑄誠大廈辦公裝修工程
北京銀河SOHO辦公裝修工程
301醫院裝修工程
